Обяви 0 За нас Контакти
Продава МАГАЗИН
град София, Люлин 3
799 572 €
1 563 826.90 лв.

(1 201 €, 2 348.95 лв./m2)
Цената е без ДДС
История на цената
Коригирана в 13:45 на 1 декември, 2025 год.
Обявата е посетена 69 пъти.
Площ:
666 m2
ТEЦ:
НЕ
Строителство:
Тухла, 2023 г.

Описание на имота:


3mo Амалтея продава МЕДИЦИНСКИ ЦЕНТЪР за групова практика за първична (специализирана медицинска и дентална) помощ в нова сграда, пред АКТ 16. Намира се на 500 м. от Метростанция 'Люлин'. В района са разположени Кооперативен пазар, Хипермаркети, Поща, Банки.
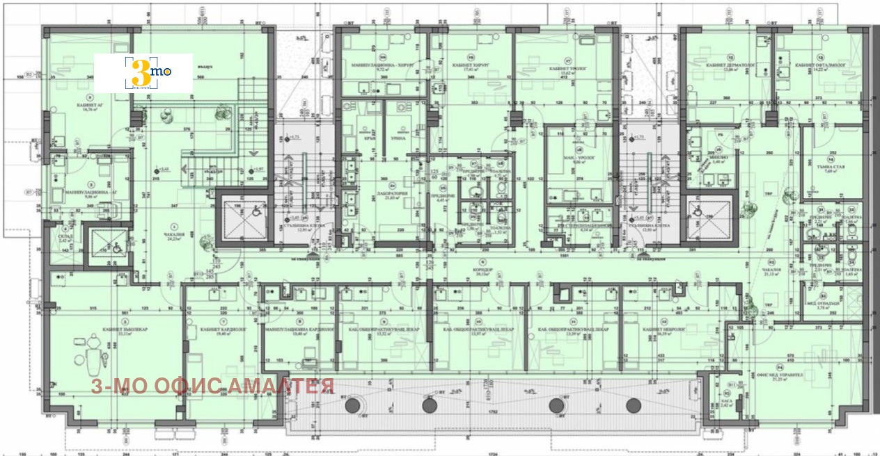
Медицинският център е разпределен на два етажа с разгърната застроена площ 573,79 кв.м. и обща площ 666,31 кв.м. Първо ниво е на партера, със ЗП 102,20 кв.м. и включва регистратура с чакалня, кабинет, манипулационна и тоалетна. Към втория етаж има асансьор и вътрешни стълби. Второ ниво е със ЗП 471,59 кв.м. и включва 14 кабинета, лаборатории, помощни помещения, приемни, манипулационни, чакални и санитарни помещения.
Отоплението е на ток. Изложението е югозапад-северозапад-североизток.
Обектът ще бъде издаден в степен на завършеност по БДС: шпакловка и замазка, с поставена цветна PVC дограма с двоен стъклопакет, вътрешни интериорни врати, външна метална врата с касов ключ. ВиК инсталация - до тапа, водомери, ел. табло с ключове, контакти, фасунги, електромери, извод за телефон.
В двора на сградата има свободни паркоместа с цени от 16000 EUR и гаражи - от 25000 EUR и 41000 EUR.
Цената е без ДДС.
Квартал Люлин е един от развитите квартали на столицата. През него минава първата линия на софийското метро, което позволява лесното и бързо придвижване до различни точки на града.
Оферта 252
Особености
Тухла
За контакт:
0889984448
Агенция:
3-МО ОФИС АМАЛТЕЯ
0889 984 448
3-МО ОФИС АМАЛТЕЯ logo
Медал за прослужено време
В imot.bg от 2008 г.
amaltea.imot.bg
Адрес:
област София, гр. София, ж.к. Люлин 8, ул. Годеч 3, магазин 3
http://www.3mo.bg
ИЗПРАТИ ЗАПИТВАНЕ
ИЗПРАТИ ЗАПИТВАНЕТО

Продава МАГАЗИН
град София, Люлин 3
Обява: 1l172951470205742

799 572 €
1 563 826.90 лв.
История на цената
(1 201 €, 2 348.95 лв./m2)

Цената е без ДДС
ЗАПАЗИ ОБЯВАТА

Местоположение: град София, Люлин 3

Допълнителни данни за имотите в района и сравнение с други райони

Покажи

Период

и 5 месеца

* Средните цени са определени чрез медианна стойност