Обяви 0 За нас Контакти
Продава КЛИНИКА
град София, Люлин 3
799 572 €
1 563 826.90 лв.

(1 201 €, 2 348.95 лв./m2)
Цената е без ДДС
История на цената
Коригирана в 14:30 на 9 януари, 2026 год.
Обявата е посетена 3025 пъти.
Площ:
666 m2
Етаж:
1-ви от 9
ТEЦ:
НЕ
Строителство:
Тухла, Не е въведен в експлоатация

Описание на имота:


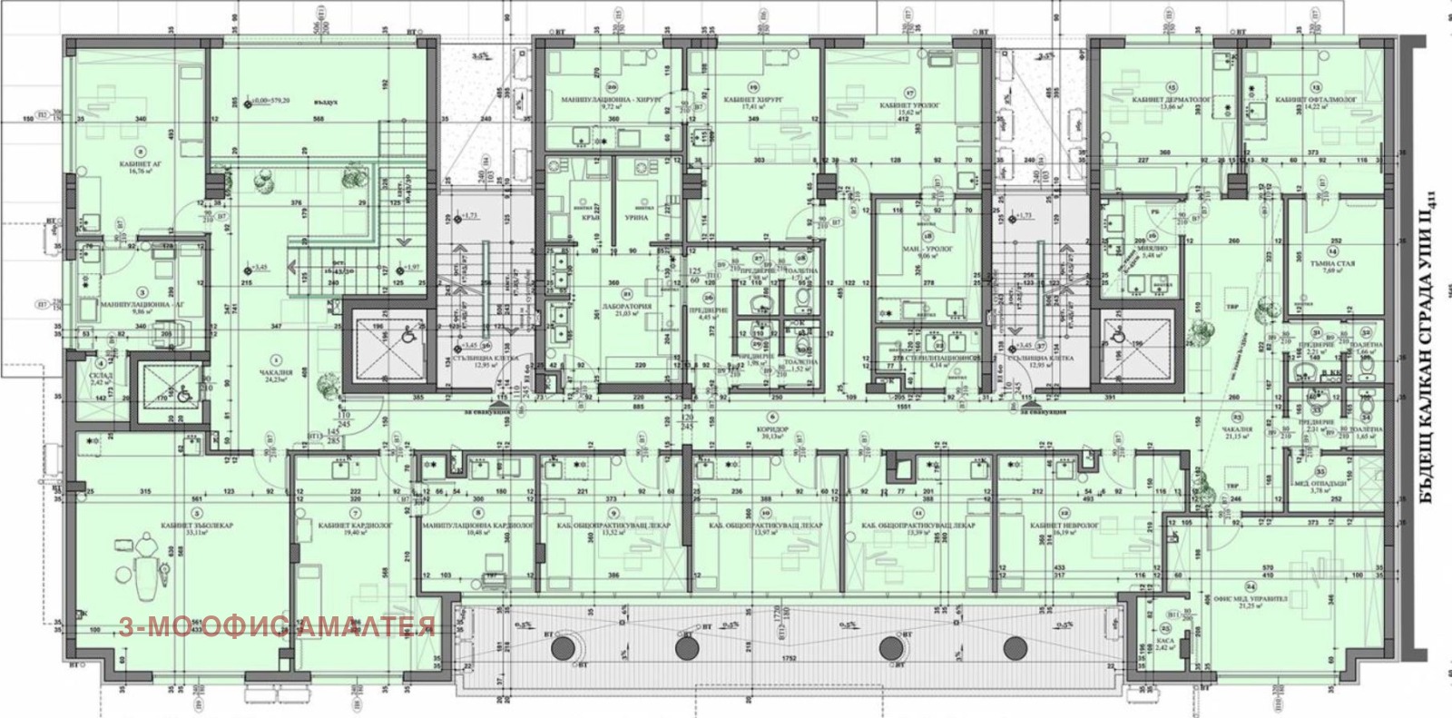
Агенция 3mo Real Estate - офис Амалтея продава МЕДИЦИНСКИ ЦЕНТЪР за групова практика за първична (специализирана медицинска и дентална) помощ в нова сграда с АКТ 16. Намира се на 500 м от Метростанция Люлин , в района са разположени Кооперативен пазар, Хипермаркети, Поща, Банки.
Медицинският център е разпределен на два етажа с разгъната застроена площ 573,79 кв.м. и обща площ 666,31 кв.м.. Първо ниво е на партера, със ЗП 102,20 кв.м. и включва регистратура с чакалня, кабинет, манипулационна и тоалетна. Към втория етаж има асансьор и вътрешни стълби. Второ ниво е със ЗП 471,59 кв.м. и включва 13 кабинета, лаборатории, помощни помещения, приемни, манипулационни, чакални и санитарни помещения.
Отоплението е на ток. Изложението е югозапад-северозапад-североизток.
Обектът е със степен на завършеност по БДС: шпакловка и замазка, с поставена цветна PVC дограма с двоен стъклопакет, външна метална врата с касов ключ. ВиК инсталация - до тапа, водомери, ел. табло с ключове, контакти, фасунги, електромери, извод за телефон.
На партера в съседство е изградено помещение за аптека с обща площ 51,49 кв.м., застроена площ 44,34 кв.м. и цена 118427 EUR.
Във вътрешния двор има две свободни паркоместа: единично, 15 кв.м., 18000 EUR, и двойно - с механизарана система за повдигане, 14 кв.м., 26000 EUR.
В сутерена има свободни едно паркомясто - 12 кв.м., 16000 EUR, и два гаража - 17 кв.м., 25400 EUR и 27 кв.м., 41000 EUR.
Всички цени са без ДДС.
Оферта 252
Особености
Тухла
Асансьор
С гараж
С паркинг
За контакт:
0889984448
Агенция:
3-МО ОФИС АМАЛТЕЯ
0889 984 448
3-МО ОФИС АМАЛТЕЯ logo
Медал за прослужено време
В imot.bg от 2008 г.
amaltea.imot.bg
Адрес:
област София, гр. София, ж.к. Люлин 8, ул. Годеч 3, магазин 3
http://www.3mo.bg
ИЗПРАТИ ЗАПИТВАНЕ
ИЗПРАТИ ЗАПИТВАНЕТО

Продава КЛИНИКА
град София, Люлин 3
Обява: 1t164545479980257

799 572 €
1 563 826.90 лв.
История на цената
(1 201 €, 2 348.95 лв./m2)

Цената е без ДДС
ЗАПАЗИ ОБЯВАТА

Местоположение: град София, Люлин 3

Допълнителни данни за имотите в района и сравнение с други райони

Покажи

Период

и 5 месеца

* Средните цени са определени чрез медианна стойност